Bringen Sie mit diesem Kellerfenster mehr Tageslicht in Ihren Keller und schaffen Sie einen helleren und einladenderen Raum. Langlebiges Material: Der Kellerfensterrahmen besteht aus PVC und verfügt über Beschläge und einen Griff, die für lange Haltbarkeit und zuverlässige Leistung sorgen. Zusätzlich bietet das Glas Wärmedämmung, Schalldämmung und eine gute Lichtdurchlässigkeit für mehr Komfort und Effizienz.Stabile Konstruktion: Der Rahmen hat eine Tiefe von 60 mm und basiert auf einem 5-Kammer-System mit einem U-förmigen Stahlkern im Inneren für mehr Stabilität.Sicherheit und Auslaufschutz: Dieses Fenster ist mit einem sicheren Schließsystem ausgestattet, das mehr Sicherheit und Schutz für Ihren Keller bietet. Zusätzlich verhindert die Kantenversiegelung Wasserlecks und minimiert Feuchtigkeitsbildung, sodass Ihr Keller trocken bleibt.Zwei Lüftungsmodi: Das Ausstiegsfenster kann zur Belüftung gekippt werden, was auch an regnerischen Tagen eine sichere Luftzirkulation ermöglicht und gleichzeitig das Eindringen von Wasser verhindert. Es lässt sich zudem horizontal nach innen schwenken und ist somit ideal für eine vollständige Belüftung oder eine einfache Reinigung.Vielfältige Einsatzmöglichkeiten: Dieser Lichtschacht kann als Kellerfenster, Gartenhausfenster, Garagenfenster, kleines Wohnraumfenster oder als Zimmerfenster genutzt werden.
- Farbe: Weiß
- Material: PVC und Glas
- Gesamtgröße: 80 x 50 cm (B x H)
- Glasgröße: 58 x 28 cm (B x H)
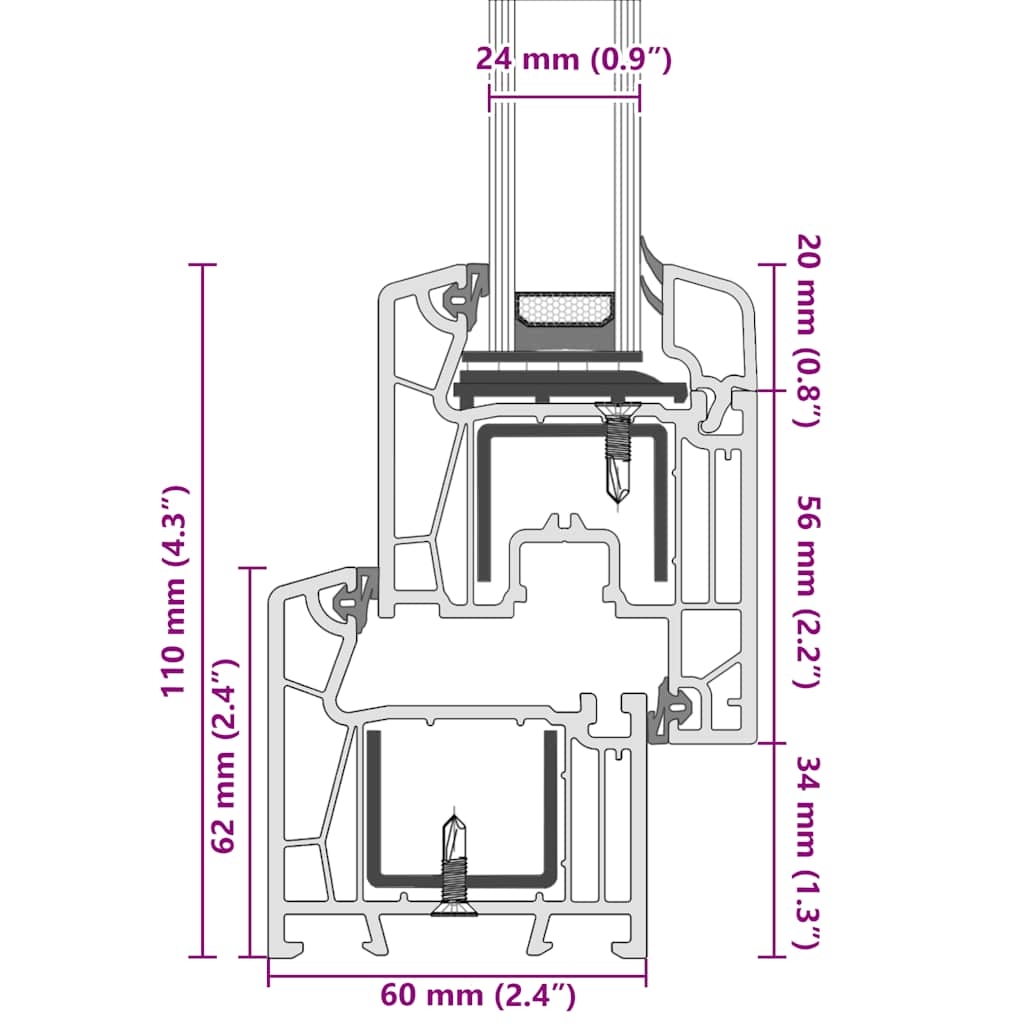
- Rahmenprofilhöhe: 62 mm
- Flügelprofilhöhe: 60 mm
- Fensterfunktionen: Dreh-Kipp rechts
- Profil: Der Rahmen hat eine Tiefe von 60 mm und ein 5-Kammer-System
- Verglasung: Das Fenster hat eine 2-fach-Isolierverglasung mit Argon-24 mm (4-16AR-4i) - Ug=1,1 W/(m²·K)
- Mit Randversiegelung
- Verstärkung: U-förmiger Stahlkern
- Serienname: RISOR
- Montage erforderlich: Ja